[image: https://wltreport.com/wp-content/uploads/2025/07/img_3505-680×900-1.jpg]
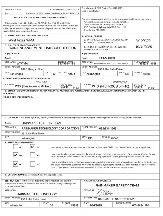
GO HERE FOR MORE wltreport.com/2025/07/07/peter-thiel-linked-cloud-seeding-company-accused-sparking/ THE NEWS FROM THESE LINKS ARE DECIDED TO BE ACCUARATE OR NOT BY YOU NOT BY THE PROPHETIC NEWS SERVICE by MESSIAH’S BRANCH which is an independent NEWS & RESEARCH MINSITRY FUNDED only by your kind donations, ANY SIZE DONATION HELPS GREATLY, Please go here to donate! prophecyhour.com/donations/ WE ALSO HAVE A MISSION CHURCH FOUND HERE wichitahomeless.com/
GO HERE FOR MORE wltreport.com/2025/07/07/peter-thiel-linked-cloud-seeding-company-accused-sparking/ THE NEWS FROM THESE LINKS ARE DECIDED TO BE ACCUARATE OR NOT BY YOU NOT BY THE PROPHETIC NEWS SERVICE by MESSIAH’S BRANCH which is an independent NEWS & RESEARCH MINSITRY FUNDED only by your kind donations, ANY SIZE DONATION HELPS GREATLY, Please go here to donate! prophecyhour.com/donations/ WE ALSO HAVE A MISSION CHURCH FOUND HERE wichitahomeless.com/
